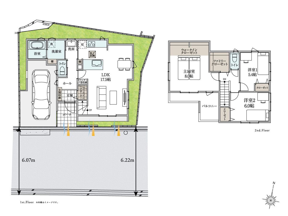
HOMEフィオレハウス豊中刀根山Ⅰのモデルハウスが完成!閑静な立地と収納たっぷりが自慢の南西向きの2階建です♪8-2 2024.10.28 8-2 CATEGORIES : Page 1 of 0 SALES分譲物件 BUSINESS事業紹介 RESULTS事業実績 PROFILE会社紹介 BLOGブログ