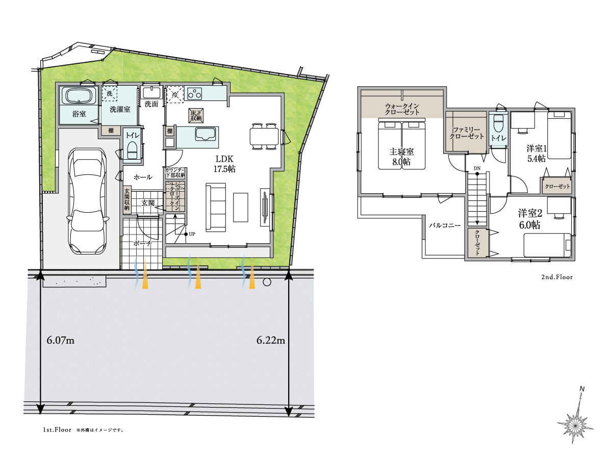
HOME【分譲地情報】モデルハウスは10月末完成予定!豊中駅最寄りの「フィオレハウス豊中刀根山Ⅰ」をご紹介します7-4-1 2024.09.20 7-4-1 CATEGORIES : Page 1 of 0 SALES分譲物件 BUSINESS事業紹介 RESULTS事業実績 PROFILE会社紹介 BLOGブログ