
BLOG
ブログ
2025.10.01
【分譲地情報】「フィオレハウス四條畷 with Park」ならハウスメーカーとのコラボで理想の住まいを実現できます!
こんにちは、ブルーム分譲住宅事業部の佐々木です。
今回は、大阪府四條畷市にある全27区画の大型分譲地「フィオレハウス四條畷 with Park」の最新情報をお届けします!
特に、マイホームをご検討中のヤングファミリーの皆様にわくわくするようなニュースがありますよ!

【フィオレハウス四條畷 with Park】
・住所/大阪府四條畷市美田町
・アクセス/JR学研都市線「四条畷」駅 徒歩18分
・総区画数/27区画
▼物件特設サイトはこちら▼
https://www.bloom-com.jp/shijonawate/
▼現地のご紹介動画▼
▼JCOMチャンネル「住めばMIYAKO」にて本分譲地が紹介されました▼
Contents
●選べる3つの建築スタイルで理想のマイホームを実現!
「フィオレハウス四條畷 with Park」では、お客様のライフスタイルやご希望に合わせて、3つのスタイルからお選びいただけます。

・建売分譲
完成済みの新築住宅を土地とセットで購入するスタイル。
実際に建物を見学して、日当たりや間取り、設備などを確認してから選べるのが大きなメリットです。
購入後はすぐに入居できるため、すぐに新生活をスタートしたい方や、手間をかけずに理想の住まいを見つけたい方にぴったり。
・建築条件付土地分譲
指定された建築会社で家を建てることを条件に、土地を購入するスタイル。
土地を選んだ後、専属の設計士と相談しながら、ご家族のライフスタイルや好みに合わせて間取りや内装、設備などを自由にプランニングできます。
「土地も建物もこだわりたいけれど、建築会社を探す手間は省きたい」という方におすすめです。
・お好きなハウスメーカーで建築可能な土地分譲
土地だけを購入し、建築するハウスメーカーや工務店をご自身で自由に選べるスタイル。
デザイン、間取り、素材、工法など、家づくりのあらゆる面で、とことんこだわりを追求したい方に向いています。
「このハウスメーカーで建てたい!」という明確な希望がある方や、じっくり時間をかけて理想のマイホームを実現したい方に最適です。
最近、特に「好きなハウスメーカーで家を建てたい!」というお客様が増えています。
そんなご要望にお応えして、ついに…!
●ビッグニュース!大手ハウスメーカーとのコラボが実現しました!
なんと、「フィオレハウス四條畷 with Park」で、大手ハウスメーカーとのコラボレーションが実現しました!
すでに3つのハウスメーカーが建築を手がけており、さらにコラボを検討中のメーカーも!
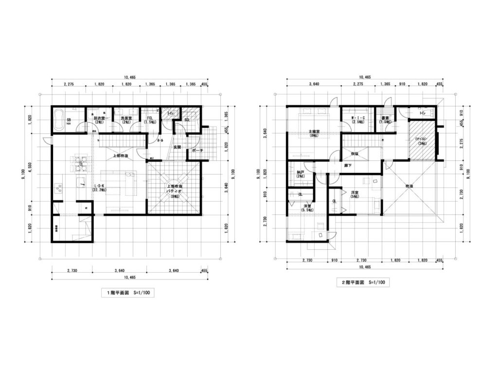
今回、10A号地(10号地と11号地の半分を合わせた、ゆとりの約40坪!)にて、各ハウスメーカーに素敵なプランを作成していただきました。
▼最新情報!旭化成ホームズ へーベルハウス様のプラン


▼住友不動産ハウジング様のプラン


▼パナソニックホームズ様のプラン


▼住友林業様のプラン


もちろん、他の号地でもプラン作成は可能ですので、お気軽にご相談くださいね。
「このハウスメーカーさんの家がいいな」
「あのメーカーさんの話も聞いてみたいな」
そんなご希望があれば、ぜひ私たちにお聞かせください。
様々なハウスメーカーとの連携が可能です。
●住宅展示場めぐりはもう不要?!フィオレハウスが「ミニマム住宅展示場」に!

ハウスメーカーで家を建てるとなると、まず住宅展示場に足を運ばれる方が多いですよね。
でも、「展示場って意外と遠い…」「たくさんのメーカーがあって、どこがいいのか迷っちゃう…」というお悩みもよく耳にします。
そんなヤングファミリーの皆さんに朗報です!
「フィオレハウス四條畷 with Park」では、現地にハウスメーカーの担当者をお招きして、直接お打ち合わせいただくことが可能です!
ご紹介するメーカーは、私たちブルームが直接お話をさせていただいている、信頼できる会社と担当者ばかり。
安心してご相談いただけます。
移動の手間なく、近場でじっくり比較検討できるのは、大きなメリットだと思いませんか?
「フィオレハウス四條畷 with Park」を「ミニマム住宅展示場」として、どうぞお気軽にご利用ください。
【ミニマム住宅展示場/人気ハウスブランドメーカー様のご案内】

※敬称略
さらにご協賛いただけるハウスメーカー様とお打ち合わせ中。ご期待ください。
●公園に隣接した開放的な環境で快適な新生活を

「フィオレハウス四條畷 with Park」は、公園に隣接した開放的な環境が魅力。
現在公開中のモデルハウスもご覧いただけます。
JR学研都市線沿線や四條畷エリアで新居をお探しの方は、ぜひ一度現地見学にお越しくださいね。
私たちスタッフが、お客様の理想のマイホームを叶えるお手伝いをいたします。
スタッフ一同、皆様のお越しを心よりお待ちしています!
▼資料請求・来場予約は、お電話またはHPからどうぞ▼
TEL:0120-23-5500
【資料請求】https://www.bloom-com.jp/request/
【来場予約】https://www.bloom-com.jp/reservation/
▼LINEのお友だち登録はこちら▼
https://s.lmes.jp/landing-qr/2002778246-LxQD0bY6?uLand=eGnZip
CATEGORIES : 分譲地情報





