
BLOG
ブログ
2021.09.14
【分譲地情報】ラスト4邸!新モデルハウスの建築が着々と進むフィオレハウス三国サンストリート最新情報
こんにちは、フィオレハウス販売窓口・ライフコミュニティ販売スタッフの「たかちゃん」こと、高岡です。

阪急「三国」駅徒歩13分、北摂の玄関口に位置する全48区画の「フィオレハウス三国サンストリート」。
いよいよラスト4区画となった当分譲地の最新情報をレポートします!
●三国サンストリートは残り4区画!
最終分譲中のフィオレハウス三国サンストリートは、現在タウン内公園や販売センターのある分譲地の中央部分に位置する区画を分譲しています。

「最終分譲」の大きな看板が見えますでしょうか!
おかげさまで続々とご成約いただき、ついに残り4区画となりました。(写真の現地看板の表示もあと4区画に変更しております。)
うち、自由設計区画は残りわずか2区画です!
これほど立地環境や利便性にすぐれた分譲地はめったに見つからないと思います。
大阪市淀川区や豊中市でマイホームをお探しの方、気になっているけどまだ見学されていないという方、以前見学したけどもう一度見学して検討したいという方は、完売してしまう前に、ぜひご見学にお越しください!
●勾配天井のあるオシャレなモデルハウスが間もなく完成予定!
フィオレハウス三国サンストリートでは、現在急ピッチで35号地モデルハウスの建築工事が進んでいます!

外観は、スタイリッシュな黒がベース!
現在公開中の34号地モデルハウス(向かって左)とは対照的な外観になっています。
中の様子を少しご紹介しましょう。

間もなく公開予定の新モデルハウスの見どころは、勾配天井を採用した2階リビング。
2階の天井部分に傾斜をつけることで、実際の面積以上の広さが感じられ、吹き抜けのような開放感も得られる空間に仕上がっています。

外の明るい日差しが採りこめるように、天井下にはスリット窓も設置。

オープンキッチンが間もなくお目見えします。
もちろん、週末のまとめ買いや災害備蓄品のストックにも便利なキッチンパントリーも付いています♪

便利なリビング収納や、テレワークができるPCカウンターも備えています。

そして、35号地モデルハウスのもうひとつの見どころは、こちら!
洗面室の一角に設けた室内干しコーナーです。
雨の日や夜でも洗濯物が干せるように、天井にアイアンバーを取り付けました。
デザイン性にこだわったオシャレなランドリーコーナーが間もなく出来上がりますよ!
●2棟のモデルハウスで住まい方を比較できます!
フィオレハウス三国サンストリートは、すでにたくさんの物件が完成し、街全体の雰囲気や街並み、完成間近の物件や現在建築中の物件も外から多数ご覧いただけます。
「実物を見て決めたい!」というお客様には、現在公開中の34号地と現在建築中の35号地のモデルハウス2邸をご見学いただくのがおすすめ。
【公開中の34号地モデルハウス】

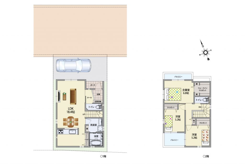
34号地モデルハウスは、1階リビングにリビングアクセス階段と対面式キッチンを採用した18帖超の広々LDKが見どころです!
家族のコミュニケーションがスムーズになる間取りをぜひ体感してください。

▼詳しくはこちら▼
https://www.bloom-com.jp/blog/post-4904/
https://www.bloom-com.jp/blog/post-4948/
【間もなく公開予定の35号地モデルハウス】

勾配天井の斜めのラインが斬新なモデルハウスは、明るい2階リビングがポイント。
この開放感をぜひ現地でご体感いただきたいと思います!

事前にご予約いただければ、建築中の現場をご覧いただくこともできます。
1階リビングの34号地と2階リビングの35号地を比較して、あなたに合った住まい方を見つけませんか?

今回は、フィオレハウス三国サンストリートの最新情報をお届けしました。
ラスト4邸と残りわずかとなっていますので、気になった方はぜひお早めにご見学にお越しくださいね♪
▼資料請求・来場予約は、お電話またはHPからどうぞ▼
TEL:0120-23-5500
CATEGORIES : 分譲地情報





